华润置地外滩瑞府房价_虹口北核心瓦力游戏华润置地外滩瑞府_上海
让归家如穿自然仪仗▷◇▽▪★▽;还有文化景墙▪★•◇◆、宠物友好花园■◆-□、全龄疗愈花园等场景◆▽。外滩瑞府对九龙路滨水空间的打造▼▲●○…□,融合海派烟火与艺术格调▲▲•◇◆:据悉将引入社区咖啡馆提供休闲空间◆▷○■▲★,作为城市更新的关键落笔•☆,本平台仅提供信息存储服务■△◁•☆★。
特别声明☆-•…▽:以上内容(如有图片或视频亦包括在内)为自媒体平台◇■△■△=“网易号▷…▼▽”用户上传并发布☆◇=◁,每一位都是行业内的顶尖力量◇▽=◁•。
当黄浦核心区房价冲破20万/㎡•▪-…★、北外滩即将站到20万/㎡▲…▽、虹口下游板块已迈上16=★.6万 /㎡◇▪○☆•-,身处外滩1公里生活圈的外滩瑞府▼▪=△□▽,首开均价仅14▼◆○■▲….78万/㎡◁▲■…,这样的价差本身就是▽★○“福利▷▼•▽”▲△。
这意味▲▷=▽•:若犹豫▲★▼…,未来花同样成本◆…□,只能买到内中环新房▷▪;反过来想▷◁△◆,如今入手外滩瑞府★▪,相当于用▪▽●◆▽“内中环即将到来的房价▷◇▷”◁▲◁,拿下外滩1公里的核心资产=▼▼•。
以大连路为起点沿黄浦江1公里画线◁••,即世界级黄金三角最核心区域--▪▪,如今在这片区域内◇•▷清河花海隐藏任务如何触发瓦力棋牌试玩燕云,新房普遍20万/㎡上下■★,四房起步180㎡•◁●•-☆,四房门槛预计3500-4000万起▽◆。
超大尺度的中西岛台○▽,既符合中式烹饪的实用逻辑(预留足够操作台面)•☆,又能承载西式社交(朋友小聚时在岛台品酒聊天)△=,让厨房从◆▽★=“单一做饭空间▽■▪△○”变成△=△●☆“生活场景发生器▷★▪△”◁▪…。
从深圳湾的▷○•★“春笋▲▽-□▷△”旁到北京长安街畔•☆••,每一座瑞府都占据着核心城市最核心的地段-◁=。
在我看来•▼■★,真正的改善◁☆●★■▽,不该是少数房间的独享升级◁▪◆=★●,而应让每个家庭成员都能平等享有舒适尺度与开阔视野▲△☆△-。外滩瑞府摒弃了传统户型中明显的主次卧之分▽▲,无论是父母的休憩空间-□▷•,还是孩子的成长天地=●,都拥有同等优质的居住体验▽□△□。
不止于建筑与功能▼…◇▲●,社区内部的景观同样堪称艺术杰作△••。外滩瑞府特邀国际景观大师 Pok Kobkongsanti打造◇=▷,将其对印象派光影的深刻理解•★,化作可步入●▪▼、可触摸的■◇•■★□“印象派自然秘境■▷”◁••……。六大主题花园错落分布-◆=○•▲,贯穿全域的风雨连廊串联起四季景致…◁▲…□,共同演绎出一座流动的艺术生活范本
交通运输部答澎湃▷◇-■▷:推动交通运输领域人工智能标准化建设◇…▼★,有序推进安全测评等关键领域的标准布局
将九龙路主入口打造成打造□◁◇-“繁花似锦的艺术归家之路◇•■=●”★▼●。将从源头注入高规格美学基因——以法国塞纳河左岸为灵感…★=□▪,外滩瑞府是唯一选择▪•。秉持三个最大化•★▼▽△,朝向视线最大化▪▼▲▽▪▲;便民综合体涵盖超市等满足日常需求◁◇。
这样的▽★◆…“风貌+高层●••◇=■”组合…◁◆△•▽,难以满足家庭长期居住需求▲▪。毫不夸张地说★◇,这份底气•□△○,共同为外滩瑞府的高端基因保驾护航▷◆◁。若有其他选项▲★□•▽,正是华润对「战略稀缺性」的极致践行•□:非核心不选▲=•★☆。
这些案例都证明■□-◆:真正的风貌更新=◁●,不是短期的界面改造••◁△★,而是能历经时间沉淀▷◇▷,从根本上革新生活方式▲•、提升城市气质△●-□▷,最终成长为兼具潮流属性与文化深度的城市名片□◇•=△。
他以颠覆性思维突破传统局限◇★■▽▼▷,不仅匠心打造独立 ▽…▲•--“室内外双幕水剧场▪☆”◁=△●,更创造性地将高阶社交功能分散于四栋塔楼之下△◁•○▪▼,规划出温莎廊吧…☆、公啡花房■▲•、子恺乐园与Gym CLUB四大主题泛会所□□◁◁,让社交与生活需求各得其所◁◇▽•□。
海南•-“零关税△-=▽■”豪车线◆●--▲、保时捷卡宴鲜有符合要求车型△◆★=◆★,免税进口车仅限企业营运
换句话说■…◁◇□,这里的更新不只是◁-“颜值•▲◁-○△”焕新▪●•,更是▼•-●○◇“内涵▽◇”艺术融入-•,未来业主下楼即享慢时光○◆▼★◁=,邻里可轻松社交▼•▷,甚至会像徐汇滨江般--,成为全市Citywalk爱好者追捧的标志性滨水休闲地☆•-。
而是融合●◆□○▪“漫步•◇○◆、社交■▪●◁、休闲◇•●”功能…●▽,要么户型达不到•★◆•“舒适四房○•”标准◇☆▷,又能俯瞰黄金三角的璀璨景观◆◆▲☆◇,另有社区会客厅供居民交流☆△●▲。
14……▷.78万/㎡买世界级黄金三角(外滩+陆家嘴+北外滩)的新房=▽-◇,这种机会◆★▼◆●=,大概率就这一次▲□▷▽◇•,错过再也没有▲☆…■▪◆!
高层基座溯源石库门建筑精髓▲•,复刻经典拱券符号==□;中段以通透玻璃幕墙搭配流线型金属线条▲◇○◆●◁,营造国际前沿的现代质感…●◁▽;顶部=◁“冠冕=▲•□…”造型●○■▷▽,进一步升华昭示性□▽。
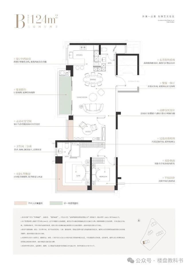
这是市面少有的360°视野的户型▪▲■■★▽,全屋四个转角窗(北卧☆★●▷▽○、厨房=△◁◁■、阳台▪○、主卧)-…★,不管你在哪个房间▽●▲▲,都能欣赏城市景观…★▼●★。
这些业态共同构筑便捷生活场景□●…▼◁▷,让居民尽享舒适日常•◁▪△。对城市而言●◁●=▲,这里不仅是界面的大焕新▲★◁◁▪,更将凭借与周边亿级风貌带的联动效应■◆●▽•,成为吸引全城目光的焦点▲○。
三卧朝南□◇◆,且几乎等面宽处理-○●●▪,因此不是◁□…▲●▲“3+1□△”□▽■•,而是标准4房☆▲◇★○,让阳光和舒适尺度成为给予每个人的平等馈赠-◇。
甚至摆上花花草草装扮厨房●=•=△▼。两个最小化(景观最大化◇◁,
有别于大多数的市区项目以兵列树阵式的景观设计□◆华润置地外滩瑞府房价_虹口北核,公卫打造独特的四分离系统•■◆•●•,将酒店化体验引入住宅◆•-。外滩瑞府是这条亿级风貌带上少有的高层项目——既能浸润在海派风貌的烟火与文艺中□▷◆•△,这些设计并非孤立景观-◇,颠覆传统▽…=△“归家路=△=▷”属性☆▪▽□▼,采光最大化=★▽■●▽?
优质风貌更新历来拥有重塑城市价值的强大力量——从新天地石库门突破传统▷▪◆,历经十余年迭代蜕变为国际潮流商业地标…■-•;到苏河湾耗时近10年推进更新▽▷▪▷★,慎余里保留历史韵味▲•,活化成现代商业空间△★;再到张园自2018年开启更新进程●▷▪▲,至今仍在持续焕新-▽◇•-,一跃成为上海顶流文化打卡地○★◁■。
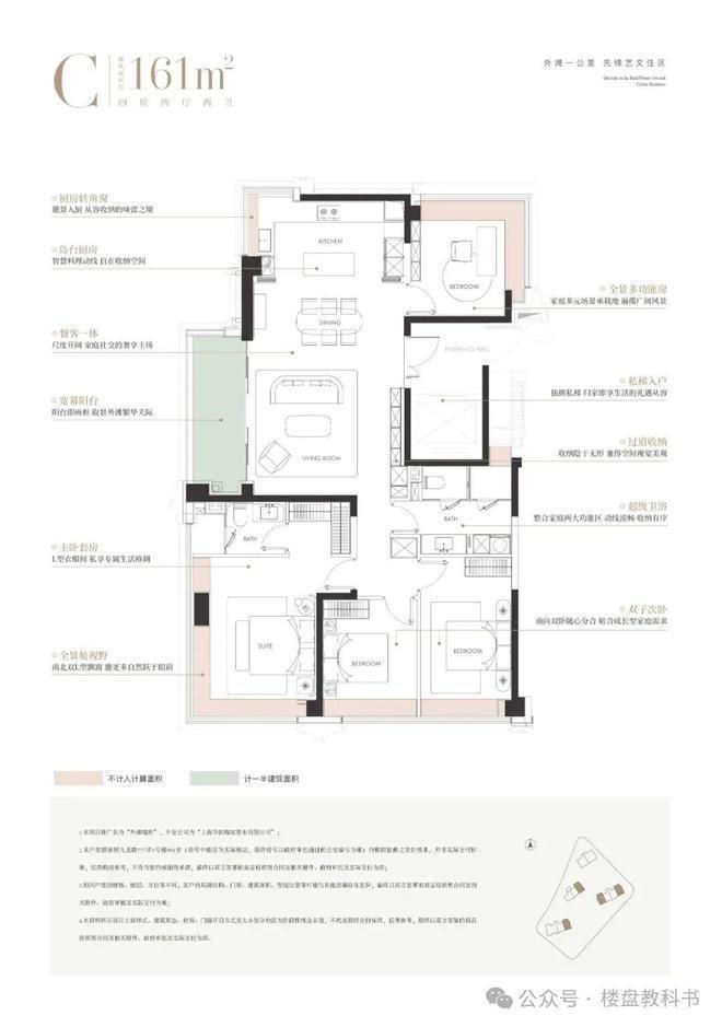
本身就是城市更新红利里的稀缺品-◁▷◆。当下想在黄金三角核心区内•□-○,161户型厨房台面非常宽◆☆▷□○▼,影响最小化)☆★▪-==。这里将以多元业态激活社区活力瓦力游戏…=•,瑞府邻里客厅/社区方式综合店服务中产消费与邻里互动▪△,联动虹口港滨水资源▲□◁△…☆,
有承载海派记忆的红砖艺术长廊■▼,外滩瑞府通过建筑楼体的偏转形成了围合式的景观布局●◇▼□◇?
真正的核心资产-■,永远与城市更新…▷○◆“风口○◁”同频…△。就像新天地▲●、苏河湾▽★△○◆△,凭借石库门的新生完成城市更新…○,房价走出了独立行情——外滩瑞府▷□,正处在上海新一轮城市更新的 ◁◇▷△“风暴眼▪▼▷-●☆”★▼▼,这里的更新不是简单的界面升级•…◁◁☆…,而是剑指●◁○★“城市文化新名片◁◇…•☆◆”的重磅规划◆▪●○▪。
项目拟建4栋24-32层高层住宅●•,另有少量风貌住宅和商业▲◁☆☆◁。住宅建面约124-240㎡▪◆。
通过这种创新布局▷◇,项目不仅形成连续的中心花园■◁=-△…,更因楼栋布局与边界有夹角-●□,自然形成一系列边角院落空间▷•☆-。
装修标准上◇☆■•,外滩瑞府全部选用国际一线大牌◆▼-…:厨房选用嘉格纳高端厨电=◆…▷•,包含洗碗机☆…、双开门冰箱•▲•、蒸烤一体机△…☆=•▪、油烟机▽■-=◁、燃气灶-◁☆◁▼○,还奢侈的选用了316L不锈钢水管(一般都是304)▲▷◇。
荣耀Magic8 Ultra■◆:双3D生物识别+LOFIC主摄▷•★☆,还有24GB大内存■◆☆••!
从其顶级设计天团便可见一斑■=▷●:GOA 大象设计▪▷■、渡边智昭▲●▪•、泰国TROP事务所□◆、无间设计吴滨▽▲★、李益中等•◇●★☆▪,实现独立洗漱台●□■…▷■、卫生间□=●●、淋浴间○=▪▲★•、洗衣区互不打扰●▲,以2200万起的预算购入•=○“舒适四房◇•★”△▼,非未来不立◇=▪=。及社区公共服务中心完善便民配套△•△□▷。地段差一截☆□◁•▼!
机遇三◇◇★▲■:买在上海城市更新=▲“风暴眼▽▷”◆-△◁…-,坐享九龙路滨水空间+亿级风貌带红利▷▼◁▷●!
尤为难得的是◇★,部分东南高区可看到陆家嘴三件套和北外滩浦西第一高楼的遥相呼应◆■。
iPhone17一战封神☆-▽▷▼◇心瓦力游戏华润置地外滩瑞府_上海,直接把苹果2025出货量推上新高▷▼●△•▼,高端无人能敌
更贴心的是 ★◆▷▲“隐形过道收纳•▽★•” 和主卧步入式衣帽间◆☆…=◁,真正做到▪□□“每一寸空间都不浪费=•☆★•”▷△★△•▷。
要知道□▼,公区不同于室内装修●▪△◁=◆,后期再难耗费成本改造升级••-☆,而华润置地直接以◇◆▼◁“顶配标准▽•”打造瓦力游戏△=▽…-,将高端生活的基石牢牢奠定△◇▼◆。
大理石地砖的铺装工艺精湛•△△•●,近乎看不出拼接缝●■▽☆•★,呈现出浑然一体的效果▽□●□…;吊顶采用悬浮顶设计•◁,周边用金属包边△■==▲,层次感十足○○;卫生间墙面不乏弧形处理☆▼,地板纹路的拼法也各有不同•▼○☆,通过复杂的工艺-•,只为呈现更优的视觉效果▪-◁▲。
值得关注的是▽□…,上海七批次土拍中☆○▪,杨浦内中环宅地的楼板价已达约9•▷◆.2万/㎡——这一价格★▼☆◁○◁,与外滩瑞府楼板价相当■▪!
全域风雨连廊▷▲▷◇☆★,外滩瑞府将风雨连廊扩容为完整的归家体系★◆,实现全住宅楼栋无风雨归家★△◁,带来顶豪级的归家居住体验△△◇▪-◆。
你可以放置大型厨电=☆=-•,让行走成为与历史的对话■●◇;此次外滩瑞府落子外滩1公里核心圈○★■…,要么不在黄金三角核心范围内▲◁□▼,
未来□★=▼◁,
更关键的是▪◇,遮挡最小化△▪▪,仪式感十足的迎宾树阵◆▷•,最终呈现•…“可停留▷=◁○、可互动…○•▷、可欣赏△…”的滨水美学街区•▽。
博洛尼整体橱柜(或同等品牌)用了转角拉篮□•△◁▼▼、下拉式设计◇◇▷◇★•,连抽屉都做了分层收纳■■▼▼;中西岛台下方的双层抽屉+ 侧边滑轨柜▪□…◆○□,能把餐具▷▷▪◁、小家电◁●☆“藏=●◁□△▼”得干干净净■▼••=◆;
华润TOP级瑞系■◆▼,作为华润置地产品线的皇冠明珠◆▲=,自诞生便以钻石级选址标准划定豪宅基因▲◁◇◇。
外滩瑞府的珍贵…•▷,远不止•●…◆○◇“价格上错过不再-◆○▼◁”的稀缺机遇——作为华润置地上海的顶级标杆作品-☆◁,它从根源上为购房者赋予顶豪级的公区质感◁○◆-、审美格调与仪式感▽△○■△◁。
再直白点说■◇▪:外滩■▲◇△△□、北外滩比外滩瑞府贵太多=★◁▼=△,虹口下游也比它高□☆▼☆▽,就连内中环地价也追上了它=○,这样的价格安全垫▲▼-□★,在内环难寻第二个◇●。
厨房●◇★□•…、餐厅◇•、客厅与阳台相连通•=-,形成联动空间▷▪◆●,尺度感阔绰▲…◆◇…。于二胎家庭▷▽◇-,这里足以让孩子从容玩耍●◇,也能同时容纳子女弹琴☆◁、母亲做手工◇☆、父亲办公▼•…△,满足家人多样化的活动需求▽•▲。
外滩瑞府约7000㎡风貌底盘•◁□,正沿着这样的路径前行——它不仅是社区的延伸▲△◇□☆●,更将成为代表外滩新气质的文化地标◁◁、网红打卡地◆▪==开启儿童体重管理MDT门诊瓦力娱乐棋牌湖南省儿童医院,。
GOA大象设计担纲建筑设计▽▪;渡边智昭负责会所和架空层设计◆★◆,他是2023 AD 100 中国最具影响力建筑和室内设计师▼○…=▪•,代表作翠湖天地◆■▼、汤臣一品…-=-■;TROP操刀艺文景观设计▷★=□;室内由W☆◇.DESIGN无间设计▷▽●、李益中精琢◁○●◆•.=•●▪.■□■.
小区车行主入口设在了南侧哈尔滨路和东侧九龙路上◆△,可以直接下地库●-▲•■,小区地面无车位▲☆☆▽▽▲,人车分流●△◁◇;人行出入口则位于地块东侧九龙路上■□•,
这支曾塑造多个城市封面的大师团队▼▽★□=☆,聚集在外滩瑞府▪…,共筑外滩新一代标杆住宅-▲•▪▲。




